Rif. 8041 - Schiera con tre camere

In vendita
Montebelluna - Via Malipiero
140.000 €
Appartamento
Categoria
135
m2
5
Locali
Descrizione
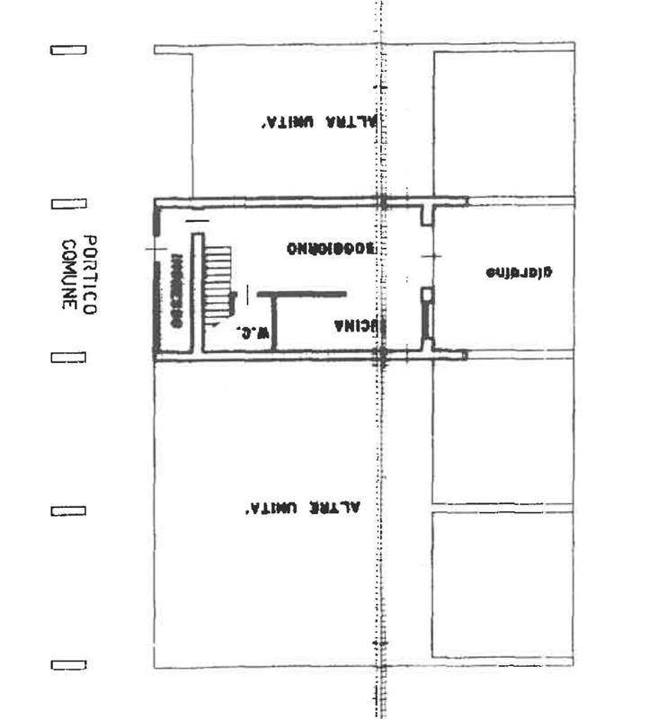
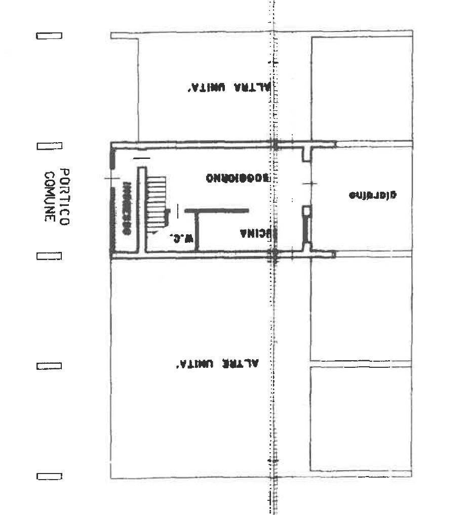
Proponiamo in vendita una casa a schiera in contesto condominiale in centro a Montebelluna.
La casa è composta da cucina e soggiorno in open space e un bagno/lavanderia al piano terra e al piano secondo tre camere spaziose e un bagno.
Completa la proprietà un garage singolo e una cantina al piano interrato.
Ideale per le famiglie.

***************************************************

Se ti interessa questa proprietà, contattaci tramite email o telefono per prenotare una visita o per ricevere maggiori informazioni.

Sarà sufficiente scriverci all’indirizzo mariachiara.cavarzan@ellebigroup.com oppure inviare un SMS al numero 342.0944416 indicando i tuoi riferimenti (nome, numero di telefono e indirizzo email) ed il riferimento numerico dell'immobile (i.e. Info 2222) indicato nell'annuncio.

In alternativa, puoi chiamare la nostra sede principale al numero +39. 0423.600345. Ti ricordiamo di indicare sempre il numero di riferimento dell'annuncio in modo da poterti fornire una rapida risposta.

Per visionare altre proposte immobiliari visita il nostro sito www.ellebigroup.com.

Nel rispetto della privacy, ti informiamo che abbiamo inserito un indirizzo non corrispondente alla reale ubicazione della proprietà.

***IMPORTANTE***
Rammentiamo infine che, in caso di acquisto, al prezzo del bene immobile dovranno essere aggiunti i seguenti costi: IVA o imposta di Registro, provvigione dovuta all’Agenzia Immobiliare, spese notarili, spese relative all’erogazione del mutuo, se richiesto.
Caratteristiche principali
Codice:
8041
Città:
Montebelluna
Categoria:
Appartamento
Spese condominiali:
550 € / anno
Locali:
5
Mq:
135
Anno:
1978
Classe energetica:
G
225,26 kWh/m²a
Stato Immobile:
Buono
Orientamento:
Ovest Est
Lati Liberi:
2
Giardino:
Privato
Arredi:
Arredato
Riscaldamento:
Autonomo
Tipo Riscaldam.:
Caldaia
Tipo Impianto:
Radiatori
Fonte Energetica:
Metano
Acqua Calda:
Autonoma
Raffrescamento:
No
Serramenti:
Buono
Persiana:
Tapparella PVC
Accessori
Lavanderia
Parco Condominiale
Passaggio Pedonale
Mappa
Richiedi informazioni
Invia
Cookie preference