Rif. 7778/B1 - Montebelluna - Bifamiliare di nuova costruzione

In vendita
Montebelluna - via Giotto
428.000 €
Villa Bifamiliare
Categoria
150
m2
5
Locali
3
Camere
3
Bagni
1
Box
1
Posti auto
Descrizione
A soli 5 km dal centro, in una zona verde e strategicamente servita, proponiamo esclusiva bifamiliare indipendente di nuova costruzione, separata dall’unità adiacente dal garage.

La proprietà si distingue per la presenza di un bellissimo giardino privato, ideale per momenti di relax all’aria aperta, pranzi e cene in compagnia.
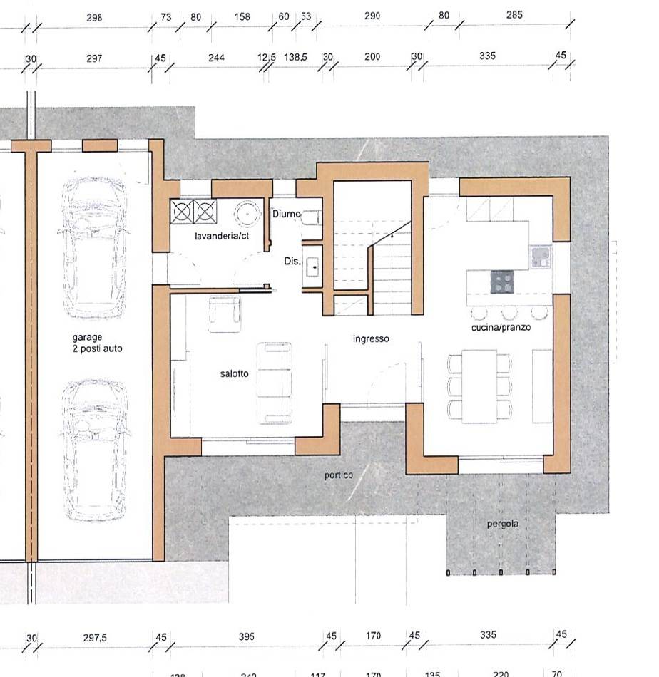
Al piano terra troviamo una luminosa zona giorno con cucina abitabile e area living affacciate sul giardino, oltre a un bagno di servizio e la lavanderia-centrale termica.
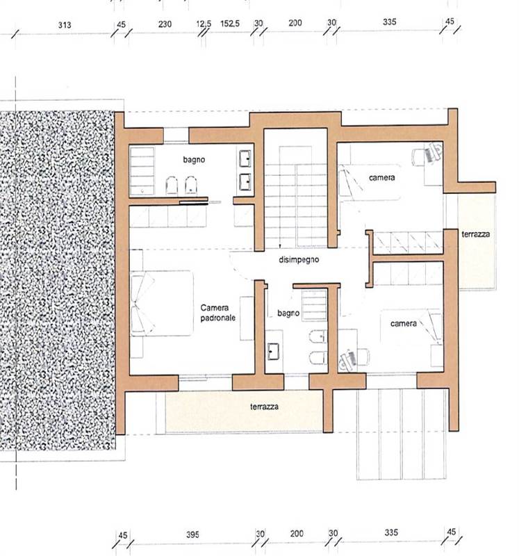
Il piano superiore ospita una spaziosa camera da letto matrimoniale con bagno en-suite, due camere da letto singole, un bagno e due terrazze, pensate per garantire comfort e funzionalità.

Completano la soluzione un garage doppio in lunghezza e la possibilità di un ulteriore posto auto all'interno della proprietà. L’immobile sarà realizzato con finiture di pregio per assicurare elevato benessere abitativo.

Si precisa che LE IMMAGINI SONO PURAMENTE ILLUSTRATIVE.

Per scoprire tutti i dettagli del progetto vi aspettiamo in agenzia!

**************************************

Se ti interessa questa proprietà, contattaci tramite email o telefono per prenotare una visita o per ricevere maggiori informazioni.

Sarà sufficiente scriverci all’indirizzo ellebi@ellebigroup.com indicando i tuoi riferimenti (nome, numero di telefono e indirizzo email) ed il riferimento numerico dell'immobile (rif 7778) indicato nell'annuncio.

In alternativa, puoi chiamare la nostra sede principale al numero +39. 0423.600345 oppure Giulia 393 9197538 Laura 347 4851316. Ti ricordiamo di indicare sempre il numero di riferimento dell'annuncio in modo da poterti fornire una rapida risposta.

Per visionare altre proposte immobiliari visita il nostro sito www.ellebigroup.com.

Nel rispetto della privacy, ti informiamo che abbiamo inserito un indirizzo non corrispondente alla reale ubicazione della proprietà.
Caratteristiche principali
Codice:
7778/B1
Città:
Montebelluna
Categoria:
Villa Bifamiliare
Locali:
5
Camere:
3
Bagni:
3
Mq:
150
Box:
1
Mq Box:
33,58
Posti auto:
1
Mq Giardino:
315
Terrazzi:
2
Anno:
2025
Classe energetica:
A4
Stato Immobile:
In Costruzione
Grado:
Signorile
Posizione:
Campagna
Panorama:
Vista Aperta
Orientamento:
Est Nord Ovest
Lati Liberi:
3
Giardino:
Privato
Arredi:
Non Arredato
Tipo Soggiorno:
Soggiorno
Tipo Cucina:
Abitabile
Riscaldamento:
Autonomo
Tipo Riscaldam.:
Pompa di Calore
Tipo Impianto:
Pavimento
Fonte Energetica:
Metano
Acqua Calda:
Autonoma
Raffrescamento:
Predisposizione
Infissi:
Legno
Serramenti:
Nuovo
Persiana:
Tapparella PVC
Pavim. Giorno:
Gres Porcellanato
Pavim. Notte:
Parquet
Pavim. Cucina:
Gres Porcellanato
Pavim. Bagno:
Gres Porcellanato
Accesso interno disabili:
Parziale
Isolamento:
Presente
VMC:
No
Accessori
Aria Condizionata
Cancello Elettrico
Impianto Fotovoltaico
Lavanderia
Passaggio Automobilistico
Porta Blindata
Ripostiglio
Video Citofono
Mappa
Richiedi informazioni
Invia
Cookie preference